Perched at the highest point on Sandalwood Close, this stunning architecturally designed home has been built and created to maximise cool summer breezes and uninterrupted views of the mountains and rainforest ensuring supreme privacy and luxury lifestyle.
This fabulous north facing split level home was built in 2007…open and airy with plenty of space and flooded with natural light, you have space to breathe. 180-degree views from the entertaining deck, living and kitchen areas will rejuvenate your senses. 100% Private and at the end of a no through road, tranquility, peace and quiet are assured.
The entrance is resort-like – beautiful wooden steps lead up to the main house with large entertainment balcony – outdoor living and breathtaking 180 degree views.
A massive open style kitchen has stone benchtops and plenty of prep space for easy entertaining. Large indoor dining and relaxing living area, and a potbelly wood burning stove for cool romantic evenings. Fully air conditioned, tinted glass and remote controlled blinds add to the all year round luxury.
The Laundry is large with plenty of storage space and opens onto an undercover deck – super convenient to dry your clothes in the wet season!
The spacious master suite has its own private separate wing and is fully air conditioned – just like living in a resort. Marvel at the captivating views whilst lying in bed and enjoy the splendour of your super large ensuite with sunken bath and walk-in double shower PLUS separate toilet.
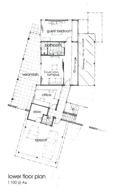
Downstairs has plenty of space for the extended family with a separate entrance to guest/family rooms. There’s 3 bedrooms OR 2 bedrooms + office PLUS a large bathroom with walk-in shower and toilet. There’s also an additional separate toilet which is super handy if you’re working in the garden.
The bedrooms all open out to a tiled undercover outdoor patio area so plenty of natural light. You’ll also love the amount of built-in storage – cupboards (about 1 m deep!) run the whole length of the hallway. Bespoke hand made wooden doors also add to feeling of quality.
There’s a handy storage area at the end of the carport PLUS a large workshop/storage area on the other side of the house.
Then there’s the tropical pool and entertaining area. Magnificent pool with outdoor shower, spa jets, stone table, umbrella, coloured lights and temperature control. Yes, you can heat and cool your pool all year round using an app on your phone.
Power bills will be minimal with a 6.8kw solar system
This 1-acre property is filled with magnificent rainforest trees (Kauri Pine,Hickory,Silky oak) and Australian Natives which attract endless species of birds and butterflies. It’s about the feeling of privacy, breathtaking views and enviable low maintenance, cosmopolitan lifestyle. It makes you feel like you’re a million miles from anywhere but so close to Kuranda Village and super easy commute into Cairns.







































